Gợi ý 99+ mẫu nhà cấp 4 3 phòng ngủ đẹp, tiện nghi 2026
- Người viết: Thạch Huy Hoàng lúc
- Tin tức
- 1. Giới thiệu về mẫu nhà cấp 4 3 phòng ngủ
- 1.1. Nhà cấp 4 3 phòng ngủ là gì? Phân loại phổ biến
- 1.2. Ưu điểm và nhược điểm của nhà cấp 4 hiện đại 3 phòng ngủ
- 1.3. Các diện tích xây dựng nhà cấp 4 3 phòng ngủ tiêu chuẩn
- 2. Tổng hợp bản vẽ mặt bằng nhà cấp 4 3 phòng ngủ 2026
- 2.1. Bản vẽ nhà cấp 4 đẹp 3 phòng ngủ 1 phòng khách, 1 phòng thờ
- 2.2. Bản vẽ nhà cấp 4 3 phòng ngủ có bếp riêng tách biệt
- 3. Mẫu nhà cấp 4 đẹp 3 phòng ngủ, xu hướng nhất năm 2026
- 3.1. Mẫu nhà cấp 4 3 phòng ngủ phân theo kiểu mái
- 3.2. Mẫu nhà cấp 4 đẹp 3 phòng ngủ theo phong cách và hình dáng
- 3.3. Mẫu nhà cấp 4 đẹp 3 phòng ngủ tối ưu không gian
- 3.4. Mẫu nhà cấp 4 3 phòng ngủ phân theo kích thước mặt tiền
- 3.5. Mẫu nhà cấp 4 hiện đại 3 phòng ngủ theo ngân sách
- 4. Báo giá và dự toán chi phí xây nhà cấp 4 đẹp 3 phòng ngủ
- 4.1. Chi phí thiết kế bản vẽ
- 4.2. Chi phí xây dựng (Phần thô và trọn gói)
- 4.3. Các khoản chi phí phát sinh cần lưu ý
- 5. Kinh nghiệm khi thiết kế, xây dựng nhà cấp 4 3 phòng ngủ
- 5.1. Lưu ý trong giai đoạn thiết kế
- 5.2. Lưu ý trong giai đoạn thi công
- 6. Câu hỏi thường gặp (FAQ) về mẫu nhà cấp 4 3 phòng ngủ
- 6.1. Xây nhà cấp 4 3 phòng ngủ (diện tích 100m2) hết bao nhiêu tiền?
- 6.2. Nhà cấp 4 3 phòng ngủ mái bằng có dễ bị ảnh hưởng bởi thời tiết không?
- 6.3. Thiết kế nhà cấp 4 hiện đại 3 phòng ngủ với chi phí 300 triệu có khả thi không?
Nhà cấp 4 hiện đại 3 phòng ngủ đang là một trong những lựa chọn hàng đầu của nhiều gia đình Việt hiện nay. Với ưu điểm về chi phí xây dựng hợp lý, thời gian thi công nhanh chóng và không gian sống tiện nghi. Bên cạnh đó, loại hình nhà ở này phù hợp với nhiều đối tượng, từ các cặp vợ chồng trẻ đến những gia đình có nhiều thế hệ cùng chung sống. Trong bài viết này, hãy cùng Nội Thất Laviehome khám phá những điều cần biết về mẫu nhà cấp 4 3 phòng ngủ, từ tổng quan, tiêu chí lựa chọn, các mẫu thiết kế đẹp, cho đến báo giá và kinh nghiệm xây dựng.

1. Giới thiệu về mẫu nhà cấp 4 3 phòng ngủ
1.1. Nhà cấp 4 3 phòng ngủ là gì? Phân loại phổ biến
Nhà cấp 4 là loại nhà ở có kết cấu chịu lực bằng gạch hoặc gỗ, thường có một tầng, diện tích xây dựng không quá 1000m2 và chiều cao tối đa 6m. Nhà cấp 4 3 phòng ngủ là biến thể của loại nhà này, được thiết kế với 3 phòng ngủ, đáp ứng nhu cầu sinh hoạt của gia đình có từ 3-5 thành viên.
Phân loại nhà cấp 4 3 phòng ngủ phổ biến:
- Theo kiểu mái: Mái Thái, mái Nhật, mái bằng, mái lệch, mái tôn/mái ngói truyền thống.
- Theo phong cách: Hiện đại, tân cổ điển, đơn giản, giả biệt thự.
- Theo hình dáng: Chữ L, chữ U, hình vuông, hình chữ nhật.
- Theo diện tích: 100m2, 120m2, 150m2,...

1.2. Ưu điểm và nhược điểm của nhà cấp 4 hiện đại 3 phòng ngủ
Ưu điểm:
- Chi phí xây dựng thấp, phù hợp với nhiều gia đình có ngân sách hạn chế.
- Thời gian thi công nhanh chóng, thường chỉ mất từ 1-3 tháng.
- Không gian sống gần gũi, ấm cúng, phù hợp với văn hóa gia đình Việt Nam.
- Dễ dàng bố trí công năng sử dụng, linh hoạt trong việc thiết kế nội thất.
- Thích hợp với nhiều loại diện tích đất, từ nông thôn đến thành thị.
Nhược điểm:
- Khả năng mở rộng không gian bị hạn chế so với nhà cao tầng.
- Đôi khi không đáp ứng được nhu cầu về sự riêng tư của các thành viên trong gia đình.
- Yêu cầu về kỹ thuật thi công cao để đảm bảo khả năng chống thấm, cách nhiệt.
1.3. Các diện tích xây dựng nhà cấp 4 3 phòng ngủ tiêu chuẩn
Diện tích xây dựng nhà cấp 4 3 phòng ngủ phụ thuộc vào số lượng thành viên trong gia đình, nhu cầu sử dụng và diện tích đất. Dưới đây là một số diện tích tiêu chuẩn:
- 100m2: Phù hợp với gia đình 2-3 người, bố trí 1 phòng khách, 1 bếp, 3 phòng ngủ, 1-2 nhà vệ sinh.
- 120m2: Phù hợp với gia đình 3-4 người, không gian sinh hoạt rộng rãi hơn, có thể bố trí thêm phòng thờ.
- 150m2: Phù hợp với gia đình 4-5 người, có thể thiết kế thêm gác lửng, sân vườn.
Ngoài ra, còn có các diện tích khác như 80m2, 90m2, 110m2,... tùy thuộc vào nhu cầu và điều kiện cụ thể của từng gia đình.
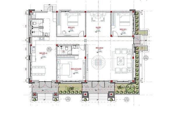
2. Tổng hợp bản vẽ mặt bằng nhà cấp 4 3 phòng ngủ 2026
Bản vẽ mặt bằng là yếu tố quan trọng để hình dung rõ ràng về không gian sống và bố trí công năng sử dụng. Dưới đây là một số bản vẽ mặt bằng nhà cấp 4 3 phòng ngủ khoa học, được nhiều gia đình lựa chọn:
2.1. Bản vẽ nhà cấp 4 đẹp 3 phòng ngủ 1 phòng khách, 1 phòng thờ
Mẫu nhà này phù hợp với những gia đình có truyền thống thờ cúng tổ tiên. Phòng thờ được bố trí ở vị trí trang trọng, yên tĩnh, thường là ở phía trước nhà hoặc ở trung tâm.

2.2. Bản vẽ nhà cấp 4 3 phòng ngủ có bếp riêng tách biệt
Thiết kế này giúp ngăn mùi thức ăn lan ra các không gian khác, tạo sự thoải mái cho các thành viên trong gia đình. Bếp thường được bố trí ở phía sau nhà, gần khu vực sân sau.

3. Mẫu nhà cấp 4 đẹp 3 phòng ngủ, xu hướng nhất năm 2026
3.1. Mẫu nhà cấp 4 3 phòng ngủ phân theo kiểu mái
3.1.1. Mẫu nhà cấp 4 3 phòng ngủ mái Thái
Mái Thái là kiểu mái phổ biến nhất hiện nay, với độ dốc lớn, giúp thoát nước nhanh chóng, chống nóng hiệu quả. Nhà cấp 4 mái Thái mang vẻ đẹp thanh thoát, hiện đại, phù hợp với nhiều phong cách kiến trúc.

3.1.2. Mẫu nhà cấp 4 3 phòng ngủ mái Nhật
Mái Nhật có độ dốc nhẹ hơn mái Thái, mang vẻ đẹp đơn giản, tinh tế. Nhà cấp 4 mái Nhật thường được thiết kế theo phong cách hiện đại, tối giản, phù hợp với những gia đình trẻ.

3.1.3. Mẫu nhà cấp 4 3 phòng ngủ mái bằng
Mái bằng có ưu điểm là tiết kiệm chi phí xây dựng, có thể tận dụng làm sân thượng, vườn rau. Tuy nhiên, mái bằng dễ bị thấm nước nếu không được thi công đúng kỹ thuật. Mẫu nhà này phù hợp với phong cách kiến trúc hiện đại, mạnh mẽ.

3.1.4. Mẫu nhà cấp 4 3 phòng ngủ mái lệch
Mái lệch tạo điểm nhấn độc đáo cho ngôi nhà, mang vẻ đẹp phá cách, ấn tượng. Nhà cấp 4 mái lệch thường được thiết kế theo phong cách hiện đại, sáng tạo, phù hợp với những gia đình thích sự khác biệt.

3.1.5. Mẫu nhà cấp 4 3 phòng ngủ mái tôn/ mái ngói truyền thống
Mái tôn/mái ngói là kiểu mái truyền thống, có chi phí xây dựng thấp, dễ thi công. Tuy nhiên, khả năng chống nóng, chống ồn của mái tôn/mái ngói không cao bằng các loại mái khác. Mẫu nhà này phù hợp với những vùng nông thôn, nơi có khí hậu mát mẻ.

3.2. Mẫu nhà cấp 4 đẹp 3 phòng ngủ theo phong cách và hình dáng
3.2.1. Mẫu nhà cấp 4 hiện đại 3 phòng ngủ
Phong cách hiện đại chú trọng vào sự đơn giản, tiện nghi, sử dụng các vật liệu mới, màu sắc trung tính. Nhà cấp 4 hiện đại thường có hình khối vuông vắn, đường nét sắc sảo, không gian mở, nhiều ánh sáng tự nhiên.

3.2.2. Mẫu nhà cấp 4 đẹp 3 phòng ngủ nông thôn
Phong cách nông thôn mang vẻ đẹp mộc mạc, gần gũi với thiên nhiên, sử dụng các vật liệu tự nhiên như gỗ, tre, nứa. Nhà cấp 4 nông thôn thường có mái ngói đỏ, tường quét vôi trắng, sân vườn rộng rãi.

3.2.3. Mẫu nhà cấp 4 3 phòng ngủ biệt thự
Mẫu nhà này có diện tích lớn hơn so với nhà cấp 4 thông thường, được thiết kế với nhiều chi tiết trang trí cầu kỳ, tạo cảm giác sang trọng, đẳng cấp như biệt thự. Nhà cấp 4 giả biệt thự thường có sân vườn rộng, hồ bơi, gara ô tô.

3.2.4. Mẫu nhà cấp 4 3 phòng ngủ hình chữ L, chữ U
Nhà cấp 4 hình chữ L, chữ U tận dụng tối đa diện tích đất, tạo ra không gian sống rộng rãi, thoáng đãng. Các góc chữ L, chữ U có thể được sử dụng làm sân vườn, chỗ để xe, khu vực vui chơi.

3.2.5. Mẫu nhà cấp 4 2 mặt tiền 3 phòng ngủ
Mẫu nhà này phù hợp với những lô đất có hai mặt tiền, tận dụng tối đa lợi thế về ánh sáng và thông gió. Nhà cấp 4 hai mặt tiền thường được thiết kế với nhiều cửa sổ, ban công, tạo không gian mở, kết nối với thiên nhiên.

3.3. Mẫu nhà cấp 4 đẹp 3 phòng ngủ tối ưu không gian
3.3.1. Mẫu nhà cấp 4 3 phòng ngủ 1 phòng thờ
Thiết kế này đảm bảo không gian thờ cúng trang nghiêm, yên tĩnh, đồng thời vẫn đáp ứng đầy đủ các công năng sinh hoạt khác. Phòng thờ thường được bố trí ở vị trí trung tâm hoặc phía trước nhà.

3.3.2. Mẫu nhà cấp 4 3 phòng ngủ có gác lửng
Gác lửng giúp tăng diện tích sử dụng cho ngôi nhà, có thể được sử dụng làm phòng ngủ, phòng làm việc, phòng kho,... Nhà cấp 4 có gác lửng phù hợp với những gia đình có diện tích đất hạn chế.

3.3.3. Mẫu nhà cấp 4 3 phòng ngủ có sân vườn xanh mát
Sân vườn tạo không gian xanh mát, thư giãn cho gia đình, giúp cải thiện chất lượng cuộc sống. Nhà cấp 4 có sân vườn thường được thiết kế với nhiều cây xanh, hoa lá, hồ cá, tiểu cảnh.

3.4. Mẫu nhà cấp 4 3 phòng ngủ phân theo kích thước mặt tiền
3.4.1. Mẫu nhà cấp 4 3 phòng ngủ 5x20m, 5x18m, 5x25m
Với kích thước mặt tiền 5m, chiều dài từ 18-25m, có thể thiết kế nhà cấp 4 hiện đại 3 phòng ngủ với bố cục hợp lý, đảm bảo không gian sinh hoạt thoải mái cho gia đình.

3.4.2. Mẫu nhà cấp 4 ngang 6m 3 phòng ngủ
Mặt tiền 6m là kích thước phổ biến, dễ dàng thiết kế nhà cấp 4 đẹp 3 phòng ngủ với nhiều phong cách kiến trúc khác nhau.

3.4.3. Mẫu nhà cấp 4 3 phòng ngủ 7x12m, 7x15m
Với mặt tiền 7m và chiều dài 12-15m, có thể thiết kế nhà cấp 4 3 phòng ngủ với không gian rộng rãi, thoải mái, có thể bố trí thêm sân vườn nhỏ.

3.4.4. Mẫu nhà cấp 4 3 phòng ngủ 8x10m, 8x12m, 8x15m
Với mặt tiền 8m và chiều dài từ 10-15m, có thể thiết kế nhà cấp 4 đẹp 3 phòng ngủ với đầy đủ các công năng, không gian sinh hoạt tiện nghi, thoải mái.

3.5. Mẫu nhà cấp 4 hiện đại 3 phòng ngủ theo ngân sách
3.5.1. Mẫu nhà cấp 4 3 phòng ngủ giá rẻ 200 - 300 triệu
Với ngân sách 200-300 triệu, có thể thiết kế nhà cấp 4 3 phòng ngủ theo phong cách đơn giản, sử dụng vật liệu giá rẻ, tối ưu hóa không gian sử dụng. Mẫu nhà này phù hợp với các cặp vợ chồng trẻ mới cưới.

3.5.2. Mẫu nhà cấp 4 3 phòng ngủ mức giá 450 - 500 triệu
Với ngân sách 450-500 triệu, có thể xây dựng nhà cấp 4 3 phòng ngủ với thiết kế đẹp, sử dụng vật liệu trung bình, đảm bảo chất lượng công trình. Mẫu nhà này phù hợp với các gia đình có thu nhập trung bình.

4. Báo giá và dự toán chi phí xây nhà cấp 4 đẹp 3 phòng ngủ
4.1. Chi phí thiết kế bản vẽ
Chi phí thiết kế bản vẽ thiết kế nhà cấp 4 3 phòng ngủ dao động từ 50.000 - 150.000 VNĐ/m2, tùy thuộc vào độ phức tạp của thiết kế, uy tín của đơn vị thiết kế.
4.2. Chi phí xây dựng (Phần thô và trọn gói)
Chi phí xây dựng nhà cấp 4 hiện đại 3 phòng ngủ phụ thuộc vào nhiều yếu tố như diện tích xây dựng, vật liệu sử dụng, địa điểm xây dựng, đơn vị thi công. Dưới đây là bảng báo giá tham khảo:
- Phần thô: 3.100.000 - 3.500.000 VNĐ/m2
- Trọn gói (vật tư trung bình): 4.500.000 - 4.800.000 VNĐ/m2
- Trọn gói (vật tư khá): 5.300.000 - 5.800.000 VNĐ/m2
- Trọn gói (vật tư tốt): 6.000.000 - 6.500.000 VNĐ/m2

4.3. Các khoản chi phí phát sinh cần lưu ý
Ngoài chi phí thiết kế và xây dựng, cần dự trù thêm các khoản chi phí phát sinh sau:
- Chi phí xin phép xây dựng
- Chi phí san lấp mặt bằng
- Chi phí vận chuyển vật liệu
- Chi phí nhân công phát sinh
- Chi phí nội thất
5. Kinh nghiệm khi thiết kế, xây dựng nhà cấp 4 3 phòng ngủ
5.1. Lưu ý trong giai đoạn thiết kế
- Lựa chọn phong cách và kiểu mái nhà phù hợp ngân sách: Phong cách kiến trúc và kiểu mái nhà ảnh hưởng lớn đến chi phí xây dựng. Nên lựa chọn phong cách đơn giản, kiểu mái phổ biến để tiết kiệm chi phí.
- Bố trí công năng tối ưu, tận dụng diện tích hiệu quả: Bố trí các không gian hợp lý, tận dụng tối đa diện tích sử dụng, tránh lãng phí không gian.
- Thiết kế cảnh quan sân vườn hài hòa: Thiết kế sân vườn xanh mát, hài hòa với kiến trúc ngôi nhà, tạo không gian thư giãn cho gia đình.

5.2. Lưu ý trong giai đoạn thi công
- Lập bảng kế hoạch tài chính chi tiết: Lập bảng kế hoạch tài chính chi tiết, dự trù các khoản chi phí phát sinh để tránh tình trạng thiếu hụt ngân sách.
- Lựa chọn vật liệu hoàn thiện: Lựa chọn vật liệu chất lượng, có khả năng cách nhiệt, chống thấm tốt, đặc biệt là các giải pháp trần/vách thạch cao để tăng tính thẩm mỹ và độ bền cho ngôi nhà.
- Chọn thời điểm thi công thuận lợi: Chọn thời điểm thời tiết khô ráo, ít mưa để thi công thuận lợi, đảm bảo chất lượng công trình.
- Tham khảo công trình thực tế và lựa chọn nhà thầu uy tín: Tham khảo các công trình thực tế đã hoàn thành và lựa chọn nhà thầu uy tín, có kinh nghiệm để đảm bảo chất lượng công trình.6.
6. Câu hỏi thường gặp (FAQ) về mẫu nhà cấp 4 3 phòng ngủ
6.1. Xây nhà cấp 4 3 phòng ngủ (diện tích 100m2) hết bao nhiêu tiền?
Chi phí xây nhà cấp 4 đẹp 3 phòng ngủ diện tích 100m2 dao động từ 450 - 650 triệu đồng, tùy thuộc vào vật liệu sử dụng và đơn vị thi công.
6.2. Nhà cấp 4 3 phòng ngủ mái bằng có dễ bị ảnh hưởng bởi thời tiết không?
Nhà cấp 4 mái bằng dễ bị ảnh hưởng bởi thời tiết nếu không được thi công đúng kỹ thuật, đặc biệt là khả năng chống thấm. Cần chú trọng đến việc xử lý chống thấm cho mái bằng.
6.3. Thiết kế nhà cấp 4 hiện đại 3 phòng ngủ với chi phí 300 triệu có khả thi không?
Thiết kế nhà cấp 4 3 phòng ngủ với chi phí 300 triệu là khả thi nếu lựa chọn thiết kế đơn giản, sử dụng vật liệu giá rẻ và tự giám sát thi công. Tuy nhiên, chất lượng công trình có thể không được đảm bảo.
Tóm lại, mẫu nhà cấp 4 3 phòng ngủ không chỉ là giải pháp tối ưu về chi phí mà còn đáp ứng đầy đủ nhu cầu sinh hoạt tiện nghi cho nhiều gia đình Việt hiện nay. Với đa dạng phong cách thiết kế, linh hoạt trong bố trí công năng và phù hợp với nhiều mức ngân sách, đây chắc chắn là lựa chọn đáng cân nhắc nếu bạn đang có kế hoạch xây dựng tổ ấm trong tương lai. Hy vọng những thông tin mà Nội Thất Laviehome chia sẻ sẽ giúp bạn có thêm góc nhìn rõ ràng, từ đó dễ dàng lựa chọn được mẫu nhà cấp 4 hiện đại 3 phòng ngủ phù hợp nhất với nhu cầu và điều kiện của mình.




