99+ Mẫu nhà cấp 4 120m2 4 phòng ngủ 1 thờ tiện nghi 2026
- Người viết: Thạch Huy Hoàng lúc
- Tin tức
- 1. Đặc điểm của mẫu nhà cấp 4 120m2 4 phòng ngủ 1 thờ
- 2. Vì sao mẫu nhà cấp 4 120m2 4 phòng ngủ 1 thờ được ưa chuộng?
- 2.1. Giải pháp không gian tối ưu cho gia đình đông thành viên
- 2.2. Sự tiện lợi trong sinh hoạt
- 2.3. Tiết kiệm chi phí đầu tư
- 3. Bản vẽ mặt bằng mẫu nhà cấp 4 120m2 4 phòng ngủ 1 thờ 2026
- 3.1. Nguyên tắc bố trí phòng thờ hợp phong thủy
- 3.2. Gợi ý các phương án bố trí mặt bằng chi tiết
- 4. Tổng hợp mẫu nhà cấp 4 120m2 4 phòng ngủ 1 thờ mới nhất 2026
- 4.1. Mẫu nhà cấp 4 120m2 4 phòng ngủ 1 thờ mái Thái
- 4.2. Mẫu nhà cấp 4 120m2 4 phòng ngủ 1 thờ mái Nhật
- 4.3. Mẫu nhà cấp 4 120m2 4 phòng ngủ 1 thờ mái bằng
- 4.4. Mẫu nhà cấp 4 120m2 4 phòng ngủ 1 thờ mái lệch
- 4.5. Mẫu nhà cấp 4 120m2 4 phòng ngủ 1 thờ phong cách tân cổ điển
- 4.6. Mẫu nhà cấp 4 120m2 4 phòng ngủ 1 thờ phong cách tối giản (Minimalism)
- 4.7. Mẫu nhà cấp 4 120m2 4 phòng ngủ 1 thờ có sân vườn
- 4.8. Mẫu nhà cấp 4 120m2 4 phòng ngủ 1 thờ hình chữ L
- 4.9. Mẫu nhà cấp 4 120m2 4 phòng ngủ 1 thờ tích hợp gara ô tô
- 4.10. Mẫu nhà cấp 4 120m2 4 phòng ngủ 1 thờ có gác lửng
- 5. Dự toán chi phí xây dựng nhà cấp 4 120m2 4 phòng ngủ 1 thờ
- 5.1. Các yếu tố ảnh hưởng trực tiếp đến chi phí
- 5.2. Bảng dự toán chi phí sơ bộ
- 5.3. Mẹo tối ưu chi phí và kiểm soát phát sinh khi xây nhà
- 6. Những lưu ý khi thiết kế nhà cấp 4 120m2 4 phòng ngủ 1 thờ
- 6.1. Lựa chọn phong cách kiến trúc và vật liệu phù hợp với ngân sách
- 6.2. Chú trọng ánh sáng và hệ thống thông gió tự nhiên
- 6.3. Lựa chọn nhà thầu thiết kế và thi công uy tín, chuyên nghiệp
Trong xu hướng tìm kiếm không gian sống tiện nghi, tối ưu công năng, mẫu nhà cấp 4 120m2 4 phòng ngủ 1 thờ đang trở thành lựa chọn được nhiều gia đình Việt quan tâm. Với thiết kế rộng rãi, bố trí khoa học và phù hợp cho gia đình nhiều thế hệ, đây được xem là giải pháp nhà ở lý tưởng hiện nay. Cùng Nội Thất Laviehome khám phá chi tiết mẫu nhà này để có thêm ý tưởng hoàn thiện tổ ấm của bạn.
1. Đặc điểm của mẫu nhà cấp 4 120m2 4 phòng ngủ 1 thờ
Mẫu nhà cấp 4 120m2 4 phòng ngủ 1 thờ là kiểu nhà trệt có diện tích xây dựng khoảng 120 mét vuông, được thiết kế với 4 phòng ngủ, 1 phòng thờ, phòng khách, bếp và nhà vệ sinh. Kiểu nhà này thường được xây dựng trên những khu đất có diện tích tương đối rộng, phù hợp với gia đình có đông thành viên hoặc nhiều thế hệ cùng chung sống.
Nhà cấp 4 thường có chiều cao thấp, kiến trúc đơn giản, gần gũi với thiên nhiên. Tuy nhiên, với sự phát triển của ngành xây dựng và thiết kế, các mẫu nhà cấp 4 ngày nay đã trở nên đa dạng và hiện đại hơn rất nhiều, đáp ứng được nhu cầu thẩm mỹ và công năng sử dụng của nhiều gia đình.

2. Vì sao mẫu nhà cấp 4 120m2 4 phòng ngủ 1 thờ được ưa chuộng?
2.1. Giải pháp không gian tối ưu cho gia đình đông thành viên
Một trong những ưu điểm lớn nhất của mẫu nhà cấp 4 120m2 4 phòng ngủ 1 thờ là khả năng đáp ứng nhu cầu sinh hoạt của gia đình đa thế hệ. Với 4 phòng ngủ riêng biệt, mỗi thành viên trong gia đình đều có không gian riêng tư để nghỉ ngơi và làm việc. Phòng thờ được bố trí trang trọng, thể hiện sự tôn kính với tổ tiên và là nơi để cả gia đình sum vầy vào những dịp lễ, Tết.
Ngoài ra, diện tích 120m2 cũng đủ để bố trí các không gian sinh hoạt chung như phòng khách, bếp và khu vực ăn uống một cách thoải mái và tiện nghi. Các không gian này có thể được thiết kế liên thông với nhau để tạo cảm giác rộng rãi và thoáng đãng hơn.

2.2. Sự tiện lợi trong sinh hoạt
Nhà cấp 4 có ưu điểm vượt trội là tất cả các không gian sinh hoạt đều được bố trí trên một mặt sàn. Điều này mang lại sự tiện lợi rất lớn cho các thành viên trong gia đình, đặc biệt là người già và trẻ nhỏ, vì không phải leo cầu thang, giảm thiểu nguy cơ té ngã và tai nạn.
Việc sinh hoạt trên một mặt sàn cũng giúp các thành viên trong gia đình dễ dàng giao tiếp, gắn kết và chăm sóc lẫn nhau. Đây là một yếu tố quan trọng giúp tạo nên một không gian sống ấm cúng và hạnh phúc.
2.3. Tiết kiệm chi phí đầu tư
So với việc xây dựng nhà cao tầng có cùng diện tích sử dụng, chi phí đầu tư cho mẫu nhà cấp 4 120m2 4 phòng ngủ 1 thờ thường thấp hơn đáng kể. Điều này là do nhà cấp 4 có kết cấu đơn giản hơn, không đòi hỏi kỹ thuật xây dựng phức tạp và vật liệu đắt tiền.
Ngoài ra, thời gian thi công nhà cấp 4 cũng nhanh hơn so với nhà cao tầng, giúp gia chủ tiết kiệm được chi phí nhân công và các chi phí phát sinh khác. Với mức chi phí hợp lý, mẫu nhà cấp 4 này là sự lựa chọn phù hợp với nhiều gia đình có nguồn tài chính hạn hẹp.

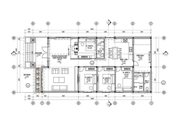
3. Bản vẽ mặt bằng mẫu nhà cấp 4 120m2 4 phòng ngủ 1 thờ 2026
3.1. Nguyên tắc bố trí phòng thờ hợp phong thủy
Phòng thờ là một không gian quan trọng trong ngôi nhà của người Việt, là nơi để thờ cúng tổ tiên và thể hiện lòng thành kính của con cháu. Do đó, việc bố trí phòng thờ trong nhà cấp 4 cần tuân thủ các nguyên tắc phong thủy để mang lại may mắn, tài lộc và bình an cho gia đình.
3.1.1. Lựa chọn vị trí đặt phòng đón tài lộc
Theo phong thủy, vị trí tốt nhất để đặt phòng thờ là vị trí “tọa cát hướng cát”, tức là lưng phòng thờ phải tựa vào một phương vị tốt và mặt phòng thờ hướng ra một phương vị tốt khác. Các phương vị tốt thường được lựa chọn là: Sinh Khí, Thiên Y, Diên Niên và Phục Vị.
Ngoài ra, cần tránh đặt phòng thờ ở những vị trí xấu như: Ngũ Quỷ, Tuyệt Mệnh, Lục Sát và Họa Hại. Những vị trí này có thể mang lại những điều không may mắn cho gia đình.

3.1.2. Những điều kiêng kỵ tuyệt đối khi đặt bàn thờ
Khi đặt bàn thờ trong nhà cấp 4, cần tránh những điều kiêng kỵ sau đây:
- Không đặt bàn thờ đối diện với cửa chính hoặc cửa nhà vệ sinh.
- Không đặt bàn thờ dưới xà ngang hoặc cầu thang.
- Không đặt bàn thờ ở những nơi ẩm thấp, tối tăm hoặc có nhiều tiếng ồn.
- Không đặt bàn thờ gần giường ngủ hoặc bếp.
- Luôn giữ cho bàn thờ sạch sẽ và trang nghiêm.
3.2. Gợi ý các phương án bố trí mặt bằng chi tiết
Dưới đây là một số gợi ý về các phương án bố trí mặt bằng chi tiết cho mẫu nhà cấp 4 120m2 4 phòng ngủ 1 thờ:
3.2.1. Phương án 1: Phòng thờ nằm ở gian giữa, 4 phòng ngủ chia đều 2 bên (Truyền thống)
Đây là phương án bố trí mặt bằng truyền thống, thường thấy ở các vùng nông thôn Việt Nam. Phòng thờ được đặt ở gian giữa của ngôi nhà, là nơi trang trọng và linh thiêng nhất. 4 phòng ngủ được chia đều ở hai bên phòng thờ, đảm bảo sự cân đối và hài hòa cho không gian.
Phòng khách thường được bố trí ở phía trước nhà, gần cửa chính, tạo không gian tiếp khách rộng rãi và thoáng đãng. Bếp và khu vực ăn uống có thể được bố trí ở phía sau nhà, liên thông với nhau để thuận tiện cho việc nấu nướng và sinh hoạt.

3.2.2. Phương án 2: Nhà hình chữ L, phòng khách liền bếp mở, khu vực phòng ngủ tách biệt
Phương án này phù hợp với những gia đình yêu thích sự hiện đại và tiện nghi. Nhà được xây dựng theo hình chữ L, tạo ra một khoảng sân nhỏ phía trước nhà. Phòng khách và bếp được thiết kế liên thông với nhau, tạo không gian mở rộng rãi và thoáng đãng.
Khu vực phòng ngủ được tách biệt hoàn toàn với khu vực sinh hoạt chung, đảm bảo sự riêng tư và yên tĩnh cho các thành viên trong gia đình. Phòng thờ có thể được bố trí ở một góc riêng trong phòng khách hoặc ở một phòng nhỏ riêng biệt.

>>>> Bài viết liên quan: Danh sách mẫu nhà cấp 4 120m2 3 phòng ngủ 1 thờ được ưa chuộng 2026
4. Tổng hợp mẫu nhà cấp 4 120m2 4 phòng ngủ 1 thờ mới nhất 2026
Hiện nay có rất nhiều mẫu nhà cấp 4 đẹp 120m2 4 phòng ngủ 1 thờ với đa dạng phong cách kiến trúc và thiết kế nội thất. Dưới đây là một số mẫu nhà tiêu biểu, được ưa chuộng nhất hiện nay:
4.1. Mẫu nhà cấp 4 120m2 4 phòng ngủ 1 thờ mái Thái
Mái Thái là kiểu mái phổ biến nhất trong kiến trúc nhà ở Việt Nam. Mẫu nhà cấp 4 mái Thái mang đến vẻ đẹp sang trọng, bề thế và khả năng chống nóng, chống thấm tốt. Với diện tích 120m2, gia chủ có thể thoải mái thiết kế các chi tiết trang trí như phào chỉ, hoa văn, cột trụ để tăng thêm vẻ đẹp cho ngôi nhà.

4.2. Mẫu nhà cấp 4 120m2 4 phòng ngủ 1 thờ mái Nhật
Mái Nhật là kiểu mái có độ dốc vừa phải, mang đến vẻ đẹp thanh lịch, hiện đại và gần gũi với thiên nhiên. Mẫu nhà cấp 4 mái Nhật đặc biệt phù hợp với những gia đình yêu thích phong cách tối giản và tinh tế. Kiểu mái này cũng có khả năng thoát nước tốt và tiết kiệm chi phí xây dựng.

4.3. Mẫu nhà cấp 4 120m2 4 phòng ngủ 1 thờ mái bằng
Mái bằng là kiểu mái đơn giản nhất, có chi phí xây dựng thấp nhất. Mẫu nhà cấp 4 mái bằng mang đến vẻ đẹp trẻ trung, hiện đại và khả năng tận dụng không gian trên mái để làm sân thượng, vườn cây hoặc khu vực phơi đồ. Tuy nhiên, mái bằng có khả năng chống nóng và chống thấm kém hơn so với mái Thái và mái Nhật.

4.4. Mẫu nhà cấp 4 120m2 4 phòng ngủ 1 thờ mái lệch
Mái lệch là kiểu mái có độ dốc không đều nhau, tạo nên vẻ đẹp độc đáo, phá cách và ấn tượng. Mẫu nhà cấp 4 mái lệch phù hợp với những gia đình yêu thích sự sáng tạo và muốn tạo sự khác biệt cho ngôi nhà của mình. Tuy nhiên, việc thi công mái lệch đòi hỏi kỹ thuật cao và chi phí xây dựng có thể cao hơn so với các kiểu mái khác.

4.5. Mẫu nhà cấp 4 120m2 4 phòng ngủ 1 thờ phong cách tân cổ điển
Phong cách tân cổ điển là sự kết hợp giữa vẻ đẹp cổ điển và hiện đại, mang đến vẻ đẹp sang trọng, lịch lãm và tinh tế. Mẫu nhà cấp 4 phong cách tân cổ điển thường sử dụng các chi tiết trang trí như phào chỉ, hoa văn, cột trụ, đèn chùm để tạo điểm nhấn cho không gian. Màu sắc chủ đạo thường là trắng, kem, vàng nhạt.

4.6. Mẫu nhà cấp 4 120m2 4 phòng ngủ 1 thờ phong cách tối giản (Minimalism)
Phong cách tối giản là phong cách tập trung vào sự đơn giản, tinh tế và công năng sử dụng. Mẫu nhà cấp 4 phong cách tối giản thường có thiết kế đơn giản, không có nhiều chi tiết trang trí rườm rà. Màu sắc chủ đạo thường là trắng, đen, xám. Vật liệu sử dụng thường là gỗ, kính, kim loại.

4.7. Mẫu nhà cấp 4 120m2 4 phòng ngủ 1 thờ có sân vườn
Sân vườn là một phần không thể thiếu của ngôi nhà cấp 4, mang đến không gian xanh mát, gần gũi với thiên nhiên và là nơi để các thành viên trong gia đình thư giãn, vui chơi. Mẫu nhà cấp 4 có sân vườn rộng thoáng thường được thiết kế với nhiều cây xanh, hoa cỏ, hồ nước, tiểu cảnh để tạo nên một không gian sống hài hòa và thư thái.

4.8. Mẫu nhà cấp 4 120m2 4 phòng ngủ 1 thờ hình chữ L
Nhà hình chữ L là kiểu nhà có hình dáng giống chữ L, tạo ra một khoảng sân nhỏ phía trước nhà. Mẫu nhà cấp 4 hình chữ L có ưu điểm là tận dụng tối đa diện tích đất, tạo ra không gian sống rộng rãi và thoáng đãng. Khoảng sân trước nhà có thể được sử dụng để làm nơi để xe, khu vực vui chơi hoặc trồng cây.

4.9. Mẫu nhà cấp 4 120m2 4 phòng ngủ 1 thờ tích hợp gara ô tô
Với sự gia tăng của số lượng ô tô cá nhân, việc tích hợp gara ô tô vào nhà cấp 4 trở nên ngày càng phổ biến. Gara ô tô có thể được thiết kế liền kề với nhà hoặc tách biệt, tùy thuộc vào diện tích đất và nhu cầu sử dụng của gia đình. Việc có gara ô tô giúp bảo vệ xe khỏi thời tiết xấu và đảm bảo an toàn cho xe.

4.10. Mẫu nhà cấp 4 120m2 4 phòng ngủ 1 thờ có gác lửng
Gác lửng là một tầng trung gian giữa tầng trệt và mái nhà, có chiều cao thấp hơn so với một tầng thông thường. Mẫu nhà cấp 4 có gác lửng giúp tăng thêm không gian sử dụng cho gia đình mà không cần phải xây thêm tầng. Gác lửng có thể được sử dụng để làm phòng ngủ phụ, phòng làm việc, phòng kho hoặc khu vực vui chơi cho trẻ em.

5. Dự toán chi phí xây dựng nhà cấp 4 120m2 4 phòng ngủ 1 thờ
5.1. Các yếu tố ảnh hưởng trực tiếp đến chi phí
Chi phí xây dựng nhà cấp 4 120m2 4 phòng ngủ 1 thờ phụ thuộc vào nhiều yếu tố, bao gồm:
- Vật liệu xây dựng: Giá vật liệu xây dựng như xi măng, cát, đá, gạch, sắt thép, gỗ, kính, ngói,... có thể biến động tùy thuộc vào thời điểm và địa điểm mua hàng.
- Giá nhân công địa phương: Giá nhân công xây dựng cũng khác nhau tùy thuộc vào từng vùng miền và tay nghề của thợ.
- Thời điểm thi công: Thời điểm thi công cũng ảnh hưởng đến chi phí xây dựng. Thi công vào mùa mưa có thể làm chậm tiến độ và tăng chi phí phát sinh.
- Kiểu mái lựa chọn: Kiểu mái nhà cũng ảnh hưởng đến chi phí xây dựng. Mái Thái và mái Nhật có chi phí cao hơn so với mái bằng.
- Phong cách kiến trúc: Phong cách kiến trúc cũng ảnh hưởng đến chi phí xây dựng. Phong cách tân cổ điển có chi phí cao hơn so với phong cách tối giản.

5.2. Bảng dự toán chi phí sơ bộ
Dưới đây là bảng dự toán chi phí sơ bộ cho việc xây dựng nhà cấp 4 120m2 4 phòng ngủ 1 thờ. Lưu ý rằng đây chỉ là con số tham khảo, chi phí thực tế có thể khác biệt tùy thuộc vào các yếu tố đã nêu ở trên.
5.2.1. Đơn giá theo gói nhân công hoàn thiện
Với gói nhân công hoàn thiện, chủ nhà sẽ tự lo vật tư xây dựng, còn nhà thầu chỉ cung cấp nhân công để thi công. Đơn giá cho gói này thường dao động từ 1.200.000 - 1.500.000 VNĐ/m2.
>>> Như vậy, chi phí nhân công cho nhà 120m2 sẽ là khoảng 144.000.000 - 180.000.000 VNĐ.
5.2.2. Đơn giá theo gói xây dựng trọn gói
Với gói xây dựng trọn gói, nhà thầu sẽ lo toàn bộ vật tư và nhân công, chủ nhà chỉ việc nhận nhà sau khi hoàn thành. Đơn giá cho gói này thường dao động từ 4.500.000 - 6.000.000 VNĐ/m2.
>>> Như vậy, chi phí xây dựng trọn gói cho nhà 120m2 sẽ là khoảng 540.000.000 - 720.000.000 VNĐ.
5.3. Mẹo tối ưu chi phí và kiểm soát phát sinh khi xây nhà
Để tiết kiệm chi phí và kiểm soát phát sinh khi xây nhà cấp 4, bạn có thể áp dụng các mẹo sau:
- Lựa chọn phong cách kiến trúc đơn giản, không có nhiều chi tiết rườm rà.
- Sử dụng vật liệu xây dựng có giá thành hợp lý, nhưng vẫn đảm bảo chất lượng.
- Tìm kiếm và so sánh giá cả từ nhiều nhà cung cấp vật liệu xây dựng khác nhau.
- Thuê nhà thầu uy tín, có kinh nghiệm và báo giá rõ ràng.
- Lập kế hoạch chi tiết và dự trù kinh phí cho các khoản phát sinh.
- Giám sát chặt chẽ quá trình thi công để đảm bảo chất lượng và tiến độ.
6. Những lưu ý khi thiết kế nhà cấp 4 120m2 4 phòng ngủ 1 thờ
6.1. Lựa chọn phong cách kiến trúc và vật liệu phù hợp với ngân sách
Việc lựa chọn phong cách kiến trúc và vật liệu phù hợp với ngân sách là yếu tố quan trọng giúp bạn tiết kiệm chi phí xây dựng. Nếu ngân sách hạn hẹp, bạn nên chọn phong cách tối giản và sử dụng các vật liệu có giá thành hợp lý như gạch không nung, tôn lạnh, gỗ công nghiệp,...
Nếu có điều kiện kinh tế tốt hơn, bạn có thể lựa chọn phong cách tân cổ điển hoặc hiện đại và sử dụng các vật liệu cao cấp như đá tự nhiên, gỗ tự nhiên, kính cường lực,...
6.2. Chú trọng ánh sáng và hệ thống thông gió tự nhiên
Ánh sáng và hệ thống thông gió tự nhiên là yếu tố quan trọng giúp tạo nên một không gian sống thoải mái và tốt cho sức khỏe. Đặc biệt, khi chia mặt bằng thành 4 phòng ngủ, cần chú trọng đến việc bố trí cửa sổ và hệ thống thông gió để đảm bảo mỗi phòng đều có đủ ánh sáng và không khí trong lành.
Bạn có thể sử dụng các giải pháp như giếng trời, cửa sổ mái, lam chắn nắng để tăng cường ánh sáng và thông gió tự nhiên cho ngôi nhà.

6.3. Lựa chọn nhà thầu thiết kế và thi công uy tín, chuyên nghiệp
Việc lựa chọn nhà thầu thiết kế và thi công uy tín, chuyên nghiệp là yếu tố then chốt đảm bảo chất lượng và tiến độ của công trình. Bạn nên tìm hiểu kỹ về kinh nghiệm, năng lực và uy tín của nhà thầu trước khi quyết định ký hợp đồng.
Một nhà thầu uy tín sẽ tư vấn cho bạn về phong cách kiến trúc, vật liệu xây dựng, bố trí mặt bằng và dự toán chi phí một cách chi tiết và chính xác. Họ cũng sẽ đảm bảo chất lượng thi công và hoàn thành công trình đúng tiến độ.
Với sự cân đối giữa diện tích, công năng và chi phí, mẫu nhà cấp 4 120m2 4 phòng ngủ 1 thờ đang là lựa chọn lý tưởng cho nhiều gia đình Việt hiện nay. Hy vọng những chia sẻ trong bài viết đã giúp bạn có thêm góc nhìn và ý tưởng để hoàn thiện không gian sống phù hợp. Nếu bạn đang tìm kiếm giải pháp thiết kế tối ưu, đừng quên tham khảo thêm từ Nội Thất Laviehome để hiện thực hóa ngôi nhà mơ ước một cách trọn vẹn nhất.




